کلیسای رونشان-Ronchamp church
Ronchamp, Haute-Saone, France 1954 (o)
In the commune of Ronchamp, slightly south of east of Paris, sits one of Le Corbusier’s most unusual projects of his career, Notre Dame du Ronchamp, or more commonly referred to as Ronchamp. In 1950, Le Corbusier was commissioned to design a new Catholic church to replace the previous church that had been destroyed during World War II.
In 1950, when Corbusier was commissioned to design Ronchamp, the church reformists wanted to clear their name of the decadence and ornamental past by embracing modern art and architecture. Spatial purity was one of Corbusier’s main focuses by not over complicating the program and removing the typical modern aesthetic from the design
ویلای مدرن-modern vila

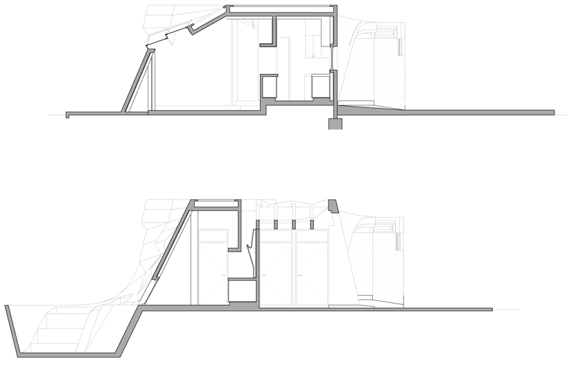
'fyf residence' by patterns in rosario, argentina
all images courtesy patterns
los angeles-based architecture practice patterns has sent us images of their recently finished
single-family house in argentina, 'fyf residence'. located in the outskirts of rosario,
a city approximately 300 km north of buenos aires, the single-storey dwelling aims to
challenge the flat homogeneity of the traditional neighborhood it sits adjacent. 
elevation
the 200 m2 project was conceived as a monolithic form punctuated by subtle inflections
that establish a complex spatial identity for both the exterior and the interior.
through a number of folds and bends, the cast-on-site reinforced concrete shell forms
the body of the house; perforations in areas of transition serves as openings, resulting in
an internal environment that is well lit, cross-ventilated, and offers oblique views.
the effects of transparency and mass is explored through systematic cuts of both the facade
and roof. 
(left) the faceted curve surface from the pool
(right) detail
located within viewing distance from the main communal area, a pliant pool stretches
the body of the house while activating a dynamic sequence of movement and views to
the landscape beyond. the projecting roof near the pool area is broken down into a number
of flat compartments that altogether form the complex curvature of the house's surface. 
looking down to the pool
interior - kitchen area
looking out to the pool 
(left) the effects of the subtle curving wall
(right) interior corridor defined by the light well 
lightwell

exterior view

entrance and garage 
plan
roof plan
longitudinal section
longitudinal section
cross sections
elevations
axo
exploded axo of integrated systems
(from bottom to top)
landscape - mounds and shreds demarcating vegetation activity
terrace
interior partitions - activity flow and controlled green systems
concrete shell - framing and window systems
substrate geometry
composite site plan
1) topographic garden
(2) terrace
(3) vehicular driveway
(4) concrete shell house
(5) pool area
رنگ در معماری
تئوگیمبل در کتابش بهنام ‘شکل، صوت، رنگ و شفا’ مىگوید: در آغاز ظلمات مقدس حکمفرما بود و از این ظلمات نور سر برآورد. نور و تاریکی، رقص آفرینش را به پایکوبى برخاستند و بدینگونه رنگهاى طیف متولد گردیدند.
حدود هشتاد هزار سال پیش بشر موفق به رنگ کردن اشیاء شد؛ که در ابتدایىترین شکل آن تنها دو رنگ سیاه و قرمز بود.
تا اوایل قرن هیجدهم میلادى رنگ کردن اشیاء بیشتر جنبهٔ هنرى و تشریفاتى داشته و نقاشى با الهام از طبیعت صورت مىگرفته است.
گفته مىشود که چشم انسان قادر است حدود دو میلیون رنگ را از یکدیگر متمایز بنماید و تشخیص دهد.












